
Op slechts 5 minuten ten noorden van Tarbes biedt dit huis (gebouwd eind jaren 1980) 135 m² woonruimte met 5 slaapkamers en een volledige kelder, perfect voor gezinnen. Het combineert rust en stilte met de nabijheid van de stad, in een aangename omgeving, met een charmante tuin en uitzicht op de Pic du Midi.
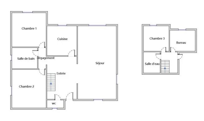
Als je dit mooie huis binnenkomt, vind je een grote hal (10m²) die de hele tuin beslaat. De woon/eetkamer (33m²) geeft uit op het terras en de tuin op het zuiden met uitzicht op de Pic du Midi. Deze ruimte heeft een efficiënte houtkachel, wat erg aangenaam is in de winter.
De ingerichte keuken (13m²) is perfect voor familiemaaltijden.
Een gang leidt naar de 1e slaapkamer (14 m²) met een doucheruimte (1,86 m²) met douche en wastafel.
Er is ook een tweede slaapkamer (12 m²) met een eigen badkamer (4,5 m²).
Op dit niveau vind je ook een aparte WC met een eigen waterpunt.
Terug in de hal leidt een mooie houten trap naar de eerste verdieping. Een galerij en een gang leiden naar dit niveau.
Er zijn 2 slaapkamers (10,8 & 12,9 m²), waarvan één met een grote ingebouwde kast, en een doucheruimte (5 m²) met toilet.
De galerij leidt naar de omgebouwde zolderruimte (30 m² vloeroppervlak), die gebruikt zou kunnen worden als 5e slaapkamer, speelkamer of studeerkamer, afhankelijk van je wensen.
Terug in de hal leidt een interne trap naar de volledige kelder onder het hele huis.
Het is verdeeld in 4 ruimtes:
-de garage (35 m²) voor je voertuigen, met directe toegang tot de straat voor het huis.
-een kelder (10 m²) voor de wasmachine en de vriezer.
een eerste werkplaats (13 m²) voor de gasgestookte boiler.
-een tweede atelier (34 m²) dat ook dienst doet als opslagruimte.
Deze kelder maakt de functionaliteit van dit huis compleet.
Het huis heeft een waterput met een elektrische pomp.
Als je de op de bergen gerichte tuin verkent, zul je genieten van de fruitbomen (kersen, vijgen en peren) en de rust van de omgeving.
Aan de straatkant heeft het huis een automatische voetgangerspoort, een automatische autopoort voor toegang tot de garage en een 3e poort voor het binnenbrengen van je camper of andere voertuigen.
Het pannendak is erg netjes.
Houten ramen met dubbele beglazing en houten luiken.
Centrale verwarming en warm water worden geleverd door een gemengde stadsgasboiler, aangevuld met een houtkachel.
Riolering is aanwezig.
Dit huis ligt 5 minuten ten noorden van Tarbes, 10 minuten van de snelweg, 20 minuten van het internationale vliegveld Tarbes-Lourdes-Pyrénées, 1 uur van Spanje, 50 minuten van de skipistes, 1u45 van de Atlantische Oceaan en 3 uur van de Middellandse Zee.
Deze site wordt beschermd door reCAPTCHA en de privacyregels en de gebruiksvoorwaarden van Google zijn van toepassing.